
Schulhaus Mels
Erweiterung Schulhaus Mels
Melibündtenweg 30
8887 Mels
Bauherr: Gemeinde Mels
Zeitraum: 2024-2027
Baukosten: 21.5 Mio.
Leistungsumfang: Wettbewerb, Planung, Ausführung, Bauleitung
In den letzten Jahren hat sich die Gemeinde Mels als attraktiver Wohnort etabliert, was zu einer intensiven Bautätigkeit und einem deutlichen Anstieg der Bevölkerungs- sowie Schülerzahlen geführt hat. Angesichts dieser wachsenden Schülerzahlen und der veränderten pädagogischen Anforderungen besteht ein Bedarf an zusätzlichem Raum für die Oberstufe.
Für die Erreichung dieser Ziele haben die Stimmberechtigten der Gemeinde Mels am 28.01.2024 dem Planungs- und Baukredit von CHF 21.5 Mio (inkl. Bauherrenreserve CHF 1.9 Mio.) für die Sanierung und Erweiterung des Schulhauses Feldacker zugestimmt.
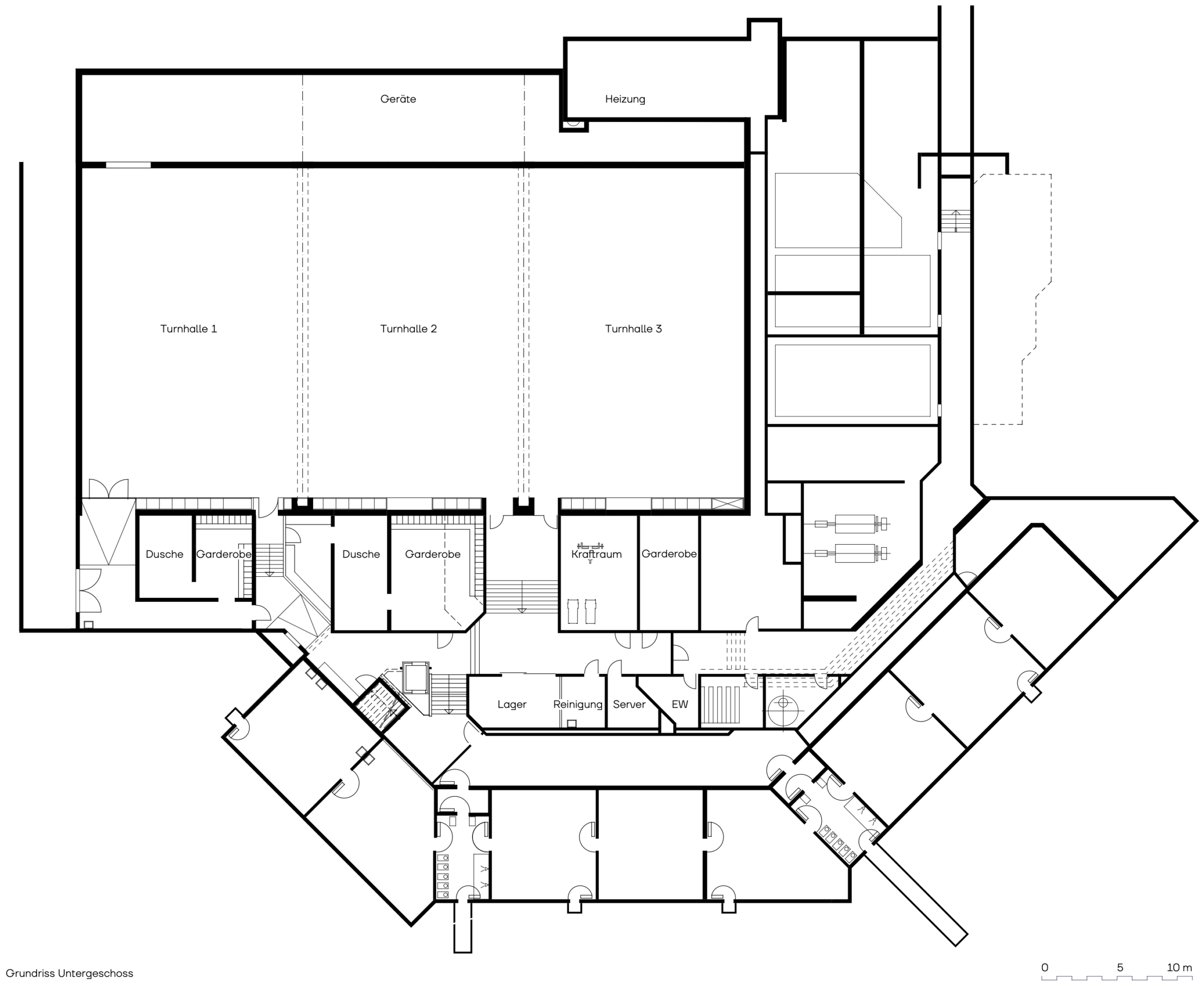
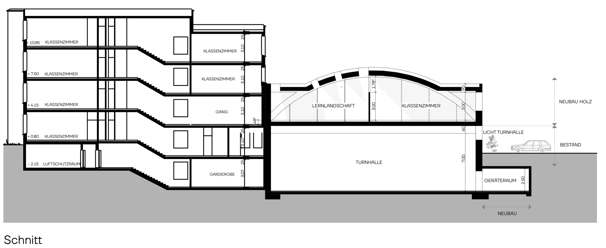
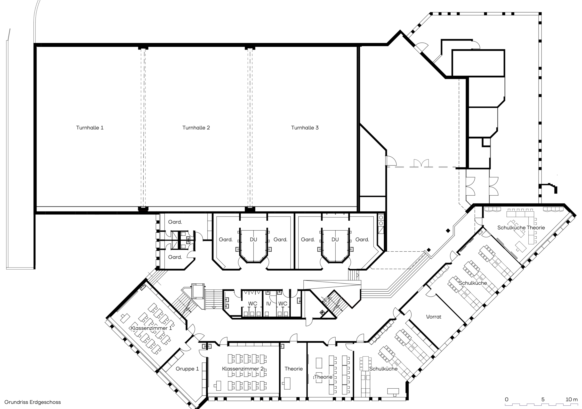
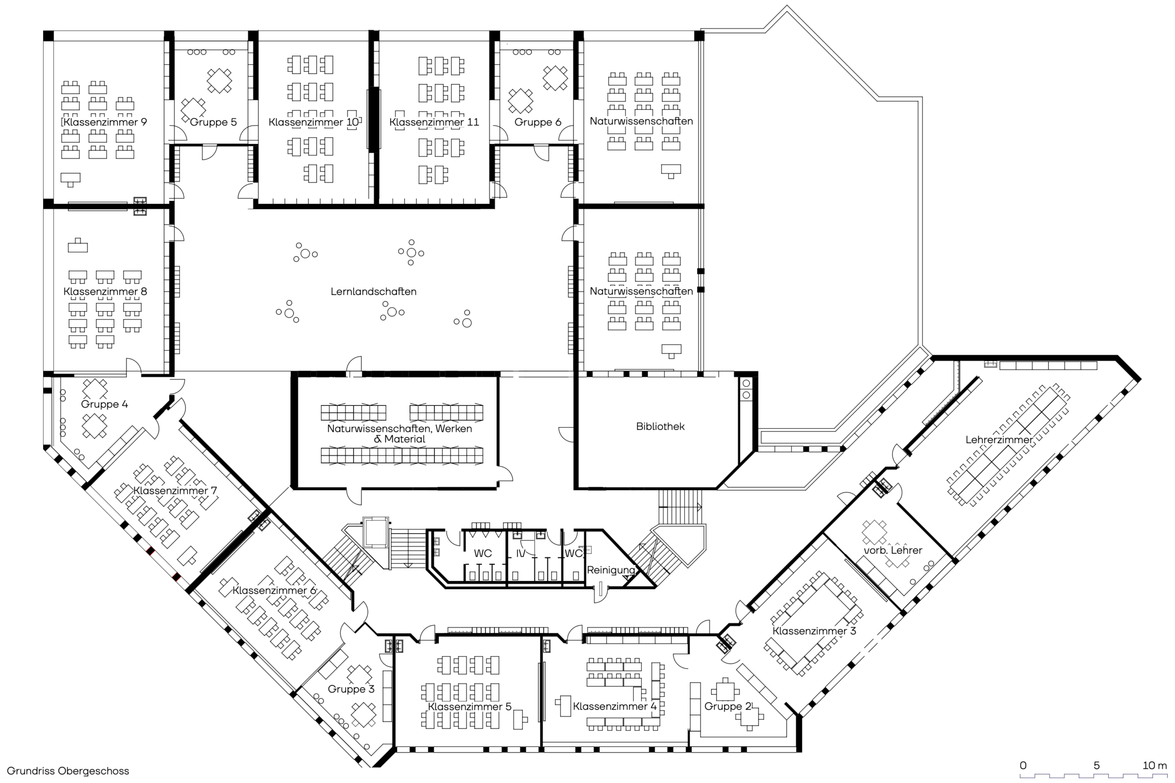
Auf der Parzelle 2107 in Mels wird das bestehende Oberstufenzentrum Feldacker im Sinne einer nachhaltigen Lösung saniert. Die angebaute dreifach Turnhalle wird, wo nötig zurückgebaut und für eine Aufstockung durch Schulräume vorbereitet. Die Turnhalle selbst wird durch einen Geräteraum in westlicher Richtung erweitert. Die Aufstockung aus einer Holzkonstruktion wird für fünf Schulräume, einem Büro für Schulsozialarbeit und einem Büro für den Schulleiter und einer Lernlandschaft ausgelegt. Gegen Süden erhält das Schulhaus eine Erweiterung im UG / EG / 1. OG diese beinhaltet, zwei Schulräume, zwei Gruppenräume und im UG einen Kraftraum sowie Räume für Lehrer- und Lehrerinnengarderoben. Anhand des Vorprojekts soll geprüft werden, ob dieser Gebäudeteil um 1-2 Geschosse erweitert werden kann und welche Kosten hierfür entstehen werden.
Das bestehende Schulhaus soll wo nötig saniert werden. Im Untergeschoss werden Räume umgenutzt und zusätzliche Garderoben für den Turnhallenbetrieb erstellt. Erd- bis Dachgeschoss sollen vor allem hinsichtlich der Oberflächen erneuert werden. In diesen Geschossen werden die Eingriffe soweit als möglich minimiert, da der Bestand eine gute Grundstruktur vorweist.








